こんにちは!ハウスモ不動産都島店です!
今回ご紹介するのは、Osaka Metro谷町線南森町駅より徒歩5分のマンションです!
抜群の立地で単身者の住み替えや、暮らしやすさの“バランス”を重視する方にもおすすめ!
「エイペックス梅田東Ⅱ」について
「エイペックス梅田東Ⅱ」の物件概要

| 所在地 | 大阪府大阪市北区西天満 |
|---|---|
| 最寄駅 | Osaka Metro谷町線/南森町駅 徒歩5分 |
| 築年数 | 2003年5月 |
| 間取り | 1K |
| 構造 | 鉄筋コンクリート |
「エイペックス梅田東Ⅱ」の周辺施設
- 大阪市立西天満小学校 160m
- 辻学園調理・製菓専門学校 450m
- ローソン 西天満三丁目店 94m
- KOHYO 南森町店 350m
- 総合病院 650m
- 大阪天満宮 550m
- ファミリーマート 西天満東店 150m
\ 地域の特性を知りたい方へ /
「エイペックス梅田東Ⅱ」の室内詳細
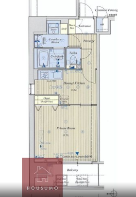
間取り

水道(公営) / ガス(都市) / 排水(下水) / バス専用共同(専用) / トイレ専用共同(専用) / バス・トイレ別 / コンロ種別(ガス) / コンロ口数(二口) / システムキッチン / エアコン / 室内洗濯機置き場 / CATV / CSアンテナ / BSアンテナ / オートロック / エレベータ / バルコニー / フローリング / 宅配ボックス / 駐輪場 / バイク置き場 / internet対応(その他インターネット) / 角部屋 / TVドアホン / 温水洗浄便座 / 浴室乾燥機 / 耐震構造 / 免震構造 / 制震構造 / ごみ出し24時間OK / 独立洗面台 / 防犯カメラ / カード決済(初期費用) / シューズボックス / 照明器具付き / 二人入居可 / 保証人不要 / 分譲賃貸 / 敷地内ゴミ置き場
※設備をクリック頂くと設備で条件を絞ることが可能です
LDK/洋室


洋室は6.5畳ながら10回という高層階に位置し、天井高と東向きのやわらかな朝日によって、想像以上に広さを感じられるつくりです。シンプルな長方形の間取りなので、ベッドとデスク、テレビボードなどを自然に配置でき、ひとり暮らしの生活動線が整いやすい点も魅力です。窓面がすっきりしていることで圧迫感も少なく、朝の光で気持ちよく一日を始められる空間です◎
キッチン

このお部屋の特徴としてまず挙げたいのが「キッチンスペースがゆったりしている」という点。1Kでは狭くなりがちなキッチン横の足元が広めに確保されており、冷蔵庫やラック、調理家電を置いても作業しやすい余裕があります。自炊派の方にとっては、コンロ周りやシンクが使いやすいだけでなく、動きやすい“空間そのものの広さ”が料理のしやすさにつながる大きな魅力です◎
バスルーム

バスルームとトイレはセパレートタイプで、快適性と清潔さを両立しています。シンプルで無駄のない造りになっており、毎日の入浴を快適にサポートしてくれます。掃除もしやすく、清潔感を保ちやすい点が魅力。浴槽は一人暮らしにちょうど良いサイズ感で、肩までしっかり浸かれるため、日々の疲れを癒すリラックスタイムを確保できます◎
脱衣所

脱衣室には、独立洗面台と洗濯機置き場が設置され、朝の支度も洗濯も“その場で完結”できる使い勝手の良い空間です。動線が短く、洗濯物の予洗いから洗濯機へ移す流れが非常にスムーズ。忙しい日でもムダな動きがなく、家事効率をしっかり支えてくれます。独立洗面台は、身支度に必要なアイテムをまとめて置けるため、生活リズムを整えたい方にもおすすめです。シンプルながらも必要な機能が揃った脱衣室は、一人暮らしでも“自然と暮らしやすい”と感じられる実用的なスペースです◎
トイレ

トイレは独立タイプで、生活スペースとしっかり分けられている点が魅力です。毎日使う場所だからこそ、落ち着いて過ごせる独立構造は快適さに直結します。また、温水便座が備わっているため、寒い季節でも安心して利用でき、初めての一人暮らしにも心強い設備です。清潔感を保ちやすく、掃除のしやすさも嬉しいポイントとなっています◎
収納

洋室に設置されたクローゼットは奥行きのあるワイドタイプで、必要な荷物を十分に収納できるサイズ感で、衣類だけでなく、スーツケースや掃除用具、シーズンオフの家電などもしっかりしまえるので、室内をすっきりと保てます。限られた空間を有効活用できる収納は、一人暮らしでも収納力重視の方にとってうれしいポイントです◎
その他の設備

来訪者の顔がひと目で確認できるモニター付きインターホンを完備しており、日々の暮らしに安心感をプラスしてくれます。突然の来客にも慌てることなく、相手を画面越しにチェックしてから応対できるため、一人暮らしや帰宅時間が不規則な方にとって心強い設備です。セキュリティ面だけでなく、宅配便の受け取りや訪問者の確認もスムーズに行え、日常生活の利便性にもつながります◎
「エイペックス梅田東Ⅱ」のおすすめポイント
こんな条件でお探しの方にオススメ
住みたい条件
その他の条件
お部屋探しでお困りの方へ
ハウスモ不動産都島店では、大阪市北区、旭区、城東区、都島区、鶴見区を中心に大阪市内の最新の賃貸情報(マンション・アパート・戸建)をお届けしています。
任せてよかったと納得、安心していただけるお部屋探しのサポートを提供させていただきます。
ご希望のお部屋がホームページに掲載されていない場合でもご安心ください。家主様のご都合でインターネットに掲載できないご希望エリアの物件をご紹介させていただきます。
「賃貸・売買で契約の事がわからない」「遠方で来店ができない」「初期費用を抑えたい」等のお悩みはお気軽にご相談ください。