こんにちは!ハウスモ不動産都島店です!
今回ご紹介するのは、Osaka Metro谷町線天満橋駅より徒歩7分のマンションです!
平日は活気がありつつも、休日は落ち着いた空気が流れるバランスの良い住環境!
「エイペックス大手通」について
「エイペックス大手通」の物件概要

| 所在地 | 大阪府大阪市中央区内淡路町 |
|---|---|
| 最寄駅 | Osaka Metro谷町線/天満橋駅 徒歩7分 |
| 築年数 | 2001年12月 |
| 間取り | 1K |
| 構造 | 鉄筋コンクリート |
「エイペックス大手通」の周辺施設
- 大阪市立中大江小学校 200m
- 大阪府立中央高等学校 600m
- ファミリーマート 本町橋店 160m
- ライフ天神橋店 210m
- 総合病院 1000m
- 中大江公園 280m
- ローソン 大手通二丁目店 210m
\ 地域の特性を知りたい方へ /
「エイペックス大手通」の室内詳細
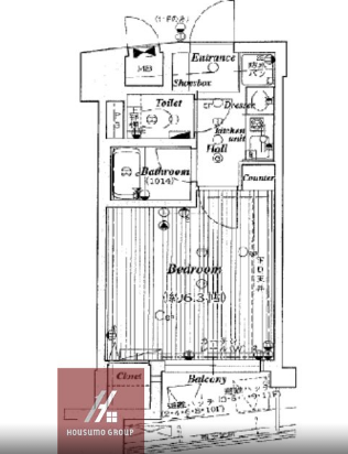
間取り

水道(公営) / ガス(都市) / 排水(下水) / バス専用共同(専用) / トイレ専用共同(専用) / バス・トイレ別 / コンロ種別(ガス) / コンロ口数(二口) / システムキッチン / エアコン / 室内洗濯機置き場 / CATV / CSアンテナ / BSアンテナ / オートロック / エレベータ / バルコニー / フローリング / 宅配ボックス / 駐輪場 / バイク置き場 / internet対応(その他インターネット) / TVドアホン / 温水洗浄便座 / 浴室乾燥機 / 独立洗面台 / 防犯カメラ / シューズボックス / 事務所可 / 二人入居可 / 保証人不要 / 敷地内ゴミ置き場
※設備をクリック頂くと設備で条件を絞ることが可能です
LDK/洋室


南向きの窓から朝日が差し込み、清々しい一日をスタートできます。6.3畳の洋室はシンプルな正方形で、家具の配置がしやすく、一人暮らしの転勤者の方でもスムーズに生活動線を確保できます。フローリングはナチュラルな色合いで、どんなインテリアも馴染みやすく、デスクやベッド、収納家具をバランスよく置けるのも魅力です。また、角部屋ではないものの、静かで落ち着いた空間が確保されており、集中して在宅ワークや趣味の時間を楽しむことができます◎
キッチン

キッチンは1口ガスコンロを備えた省スペースタイプで、調理スペースはありませんが、作業台代わりになるラックやシンク上トレーなどで工夫すれば、簡単な自炊にも対応可能。出張が多く外食中心の方や、軽めの自炊しかしない方にはちょうどいい仕様です。さらに、ミニ冷蔵庫があらかじめ設置されているため、引っ越し時に新たに購入する手間も不要です◎
バスルーム

バスルームはシンプルでコンパクトな無駄をそぎ落としたミニマルな空間で、余計な装飾や収納棚がないため、水アカがたまりにくく掃除がしやすいのが特徴です。浴槽には、自動温度調整できる給湯機能付きでぬるめが好きな方も、しっかり温まりたい方も、自分好みの温度設定が可能です。セパレードタイプなので、日常的に湯船につかる方にはぴったりです◎
脱衣所

独立した脱衣室は設けられていませんが、キッチン横に独立洗面台と洗濯機置き場が横並びで配置されており、コンパクトながらも使い勝手の良い家事動線が確保されています。帰宅後すぐに手洗いができるほか、洗濯機が近くにあることで、朝の身支度や夜のルーティンもスムーズに完結。扉の開閉や移動が少ないため、限られたスペースを効率良く使いたい一人暮らしの方にとっては、むしろストレスの少ない配置です◎
トイレ

トイレは独立した造りになっており、生活空間としっかり分けられているため、来客時でも気兼ねなく利用できる点が大きな魅力です。温水便座も備わっているため、季節を問わず快適に使えるのはもちろん、衛生面や清掃のしやすさにも配慮された設備仕様となっています。毎日使う場所だからこそ、使い勝手の良さと落ち着ける空間であることは大切。独立トイレならではの“自分専用の小さなプライベートスペース”として、忙しい日々の中でもほっと一息つける環境が整っています◎
収納

クローゼットは“奥行き”にゆとりがあるのがポイントです。幅自体は大きくないため大容量というわけではありませんが、高さもあるので、奥行きを活かして衣類の前後収納や、衣装ケースなども収めやすい構造で、見た目以上の収納力があります。また、ハンガーラックもあるので、丈の長いコートやシャツ類もしわなく収納することができます◎
その他の設備

来訪者の顔がひと目で確認できるモニター付きインターホンを完備しており、日々の暮らしに安心感をプラスしてくれます。突然の来客にも慌てることなく、相手を画面越しにチェックしてから応対できるため、一人暮らしや帰宅時間が不規則な方にとって心強い設備です◎
「エイペックス大手通」のおすすめポイント
こんな条件でお探しの方にオススメ
住みたい条件
その他の条件
お部屋探しでお困りの方へ
ハウスモ不動産都島店では、大阪市北区、旭区、城東区、都島区、鶴見区を中心に大阪市内の最新の賃貸情報(マンション・アパート・戸建)をお届けしています。
任せてよかったと納得、安心していただけるお部屋探しのサポートを提供させていただきます。
ご希望のお部屋がホームページに掲載されていない場合でもご安心ください。家主様のご都合でインターネットに掲載できないご希望エリアの物件をご紹介させていただきます。
「賃貸・売買で契約の事がわからない」「遠方で来店ができない」「初期費用を抑えたい」等のお悩みはお気軽にご相談ください。