こんにちは!ハウスモ不動産都島店です!
今回ご紹介するのは、JR東西線大阪天満宮駅より徒歩3分のマンションです!
梅田エリアへもスムーズ!静かで落ち着いた暮らしを求める方におすすめ!
「エスリード梅田東」について
「エスリード梅田東」の物件概要

| 所在地 | 大阪府大阪市北区天満 |
|---|---|
| 最寄駅 | JR東西線/大阪天満宮駅 徒歩3分 |
| 築年数 | 2000年7月 |
| 間取り | 1K |
| 構造 | 鉄筋コンクリート |
「エスリード梅田東」の周辺施設
- 滝川幼稚園 400m
- 大阪市立滝川小学校 400m
- セブン-イレブン 大阪東天満1丁目店 150m
- ライフ東天満店 85m
- 総合病院 1200m
- 大阪天満宮 190m
- ローソン 天神橋二丁目店 350m
\ 地域の特性を知りたい方へ /
「エスリード梅田東」の室内詳細
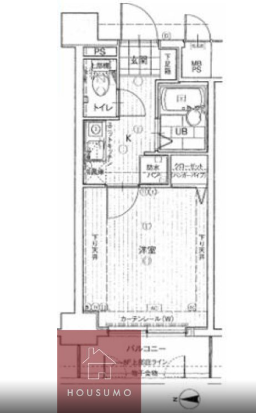
間取り

水道(公営) / ガス(都市) / 排水(下水) / バス専用共同(専用) / トイレ専用共同(専用) / バス・トイレ別 / コンロ種別(ガス) / コンロ口数(一口) / システムキッチン / エアコン / 室内洗濯機置き場 / CATV / CSアンテナ / BSアンテナ / オートロック / エレベータ / バルコニー / フローリング / 宅配ボックス / 駐輪場 / バイク置き場 / タイル貼り / internet対応(その他インターネット) / TVドアホン / インターネット利用料無料 / カード決済(初期費用) / セキュリティ会社 / 事務所可 / 二人入居可 / 保証人不要 / 分譲賃貸 / 敷地内ゴミ置き場
※設備をクリック頂くと設備で条件を絞ることが可能です
LDK/洋室


西向きの窓から柔らかい夕方の光が差し込み、落ち着いた雰囲気の洋室で、広さ6畳で一人暮らしにぴったりのサイズ感です。落ち着いた色合いの洋室なのでどんな家具とも相性がよく、レイアウトも自由に楽しめます。フローリングは清潔感があり、掃除もしやすいのがポイントで、収納スペースも確保されており、日常の整理整頓がしやすく快適です。
キッチン

キッチンは1口ガスコンロを備えた省スペースタイプで、調理スペースはありませんが、
作業台代わりになるラックやシンク上トレーなどで工夫すれば、簡単な自炊にも対応可能。
出張が多く外食中心の方や、軽めの自炊しかしない方にはちょうどいい仕様です。
バスルーム

バスルームとトイレはセパレートタイプで、快適性と清潔さを両立◎
便利な洗面台付きで身支度を浴室内でまとめてできるので、朝の準備もスムーズに行えます。
浴槽でゆったりと疲れを癒せるだけでなく、洗面台と合わせて機能的に使えるのが大きな魅力です。
脱衣所

脱衣室はありませんが、バスルームすぐ横に洗濯機置き場が設置されており、日常の生活動線が非常にスムーズです。扉付きでプライバシーも確保されており、洗濯機周りの収納棚を活用すれば洗剤や小物も整理できます。限られた空間でも、実用性を重視した設計になっています。
トイレ

独立タイプのトイレは、温水洗浄便座付きで機能性も高く、清潔感のある快適な空間に仕上がっています。シンプルでありながらも生活に欠かせない設備がしっかり整っており、来客時にも安心です。
収納

ローゼットはコンパクトですが、ハンガーラッグ付きで、シャツ類はしわなくかけることができます。入りきらないオフシーズンの衣類はボックス収納やベッド下収納などで補うのがおすすめ。限られたスペースを有効活用することで、スッキリとした暮らしが実現します。
その他の設備

モニター付きインターホンを完備しており、来訪者の顔をしっかりと確認してから対応できる安心設計。
特に女性の一人暮らしにとって、防犯面の安心感は欠かせないポイントです◎
「エスリード梅田東」のおすすめポイント
こんな条件でお探しの方にオススメ
住みたい条件
その他の条件
お部屋探しでお困りの方へ
ハウスモ不動産都島店では、大阪市北区、旭区、城東区、都島区、鶴見区を中心に大阪市内の最新の賃貸情報(マンション・アパート・戸建)をお届けしています。
任せてよかったと納得、安心していただけるお部屋探しのサポートを提供させていただきます。
ご希望のお部屋がホームページに掲載されていない場合でもご安心ください。家主様のご都合でインターネットに掲載できないご希望エリアの物件をご紹介させていただきます。
「賃貸・売買で契約の事がわからない」「遠方で来店ができない」「初期費用を抑えたい」等のお悩みはお気軽にご相談ください。